Asking Price $945,000
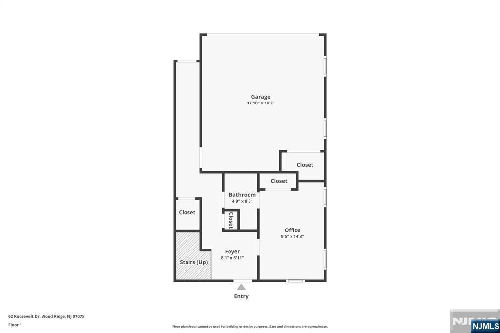
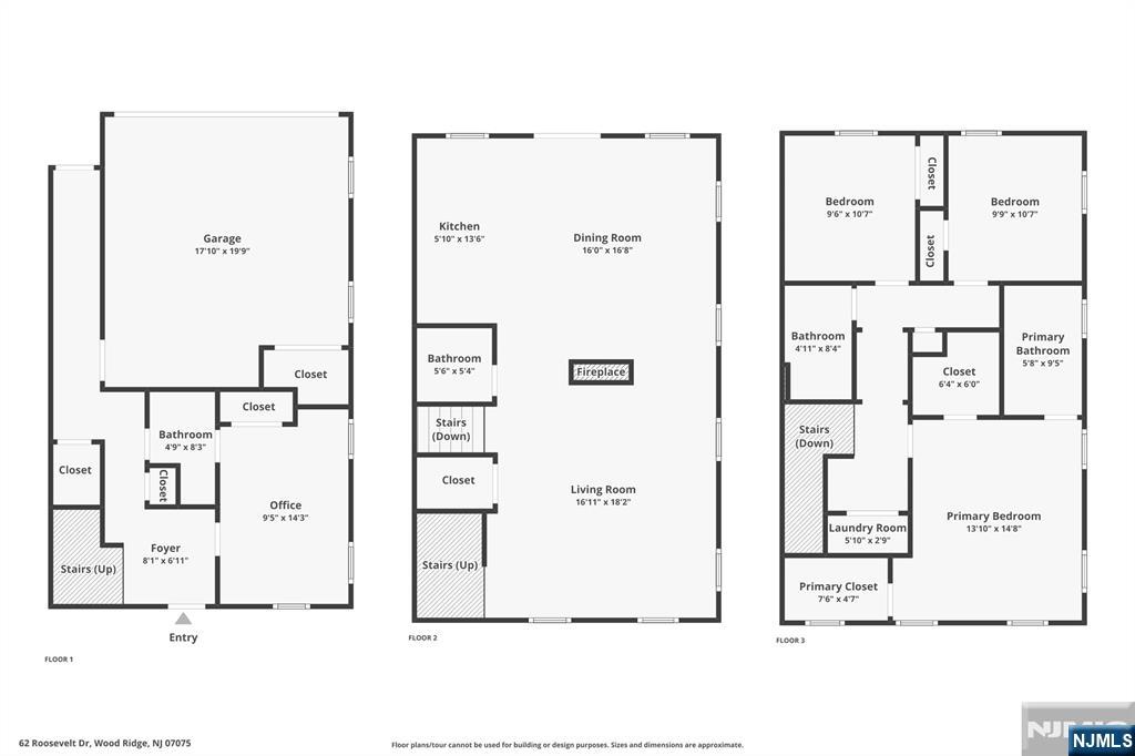
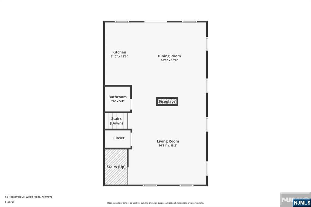
Exquisite luxurious townhome in Bergen County's prime town. This prestigious townhome redefines opulent living with an expansive 4 bedroom, 3.5-bath layout across three levels. Crafted for the discerning buyer seeking grandeur and privacy, every detail is timeless elegance and modern sophistication. Property highlights open-concept living with fully upgraded kitchen. High ceiling,s ample sunlight, double sided fireplace adds luxurious touches to the home. Signature Features *Expansive open-concept area showcase a LAVISHLY tiled kitchen & a STATEMENT tiled fireplace, perfect for hosting & quiet retreats. Bespoke Upgrades *Elegantly finished and painted 2car finished garage and a private 2car driveway. *Luxe carpeted stair runners for comfort & safety. *Custom windows with pull-down sun blockers for light control and insulation. *Fortified deck for outdoor lounging & entertaining. *State-of-the-art double zone WiFi thermostats for smart climate control. Elite Inclusions (At Seller's Discretion) The property includes HIGH END Bosch appliances. An optional Guardian security suite (featuring indoor, driveway, and doorbell cameras) is also available with enrollment. Many additional inclusions will make this an ideal living for families looking to strive a This turnkey masterpiece offers unmatched luxury with proximity to NJ Transit, direct NYC bus access, local boutiques, and cultural landmarks. Reach out today for your exclusive viewing.
| Subdivision/Complex: | Wright Place |
| HOA Fee: | $190 per |
| Year Built: | 2000 |
| Garage: | Attached |
| Heating/Cooling Type: | Gas,Hot Air |
| Fireplaces: | 1 Fireplace |
| Amenities: | None |
| Appliances: | Cntr Top Rng,Dishwasher,Disposal,Ins/Hot/Water,Microwave,Ov/Rg/Gas,Refrigerator,Self Cleaning Oven,Washer/Dryer |
| Included: | Cntr Top Rng,Dishwasher,D |
| Virtual Tour: | https://www.zillow.com/view-imx/170d36ac-4f35-477a-bf8b-db876ca4af4a?initialViewType=pano |
Listing Broker:
United Real Estate
888-501-6953


The data relating to real estate for sale on this web site comes in part from the Internet Data Exchange Program of the NJMLS. Real Estate listings held by brokerage firms other than Kurgan-Bergen Realty are marked with the Internet Data Exchange logo and information about them includes the name of the listing brokers. Last date updated: 03/17/26 Source: New Jersey Multiple Listing, Inc. Some real estate firms do not participate in Internet Data Exchange © and their listings do not appear on this website. Some properties listed with participating firms do not appear on this website at the request of the seller. All information deemed reliable but not guaranteed. © 2026 New Jersey Multiple Listing Service Inc. All rights reserved.
Information herein is deemed reliable but not guaranteed.