Asking Price $749,000
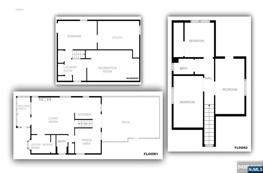
This home was selected to host an interview with the CEO of Zillow, which will soon be showcased on a NY morning news program! Beautiful three-bedroom, 1.5 bath home with office/bonus room in a friendly, sought after neighborhood. The first floor welcomes you with a bright, windowed porch perfect for sunset views, leading into a spacious living room that opens to a modern kitchen, featuring thoughtful storage solutions and a separate prep sink. Appliances are staying! A dining room, office/bonus room, and full bath complete the main level. Three bedrooms and an updated half bath are located on the second floor, providing privacy and comfort. The partially finished basement offers a fully furnished entertainment area with two wall-hung TVs, perfect for hosting big games! The dedicated laundry room comes with one-year-old washer and dryer and has plenty of closet storage. Additional storage space is also available in the unfinished basement. The backyard oasis is designed for relaxation and entertaining. This space features a covered hot tub with stone-top bar, covered outdoor sectional, and additional seating with an outdoor television. Located just a short walk from North Arlington’s schools, shops, and public transportation. Major upgrades include a 4-year-old roof with lifetime transferable manufacturer and contractor warranties, new vinyl siding, new driveway and upgraded 200-amp electrical service. Many items will remain, making this home truly move-in ready!
| Year Built: | 1940 |
| Garage: | None |
| Lot Desc: | Regular |
| Heating/Cooling Type: | Gas,Radiators |
| Siding/Exterior: | Vinyl |
| Fireplaces: | 1 Fireplace |
Listing Broker:
Harrison Realty
973-484-8100


The data relating to real estate for sale on this web site comes in part from the Internet Data Exchange Program of the NJMLS. Real Estate listings held by brokerage firms other than Kurgan-Bergen Realty are marked with the Internet Data Exchange logo and information about them includes the name of the listing brokers. Last date updated: 04/30/26 Source: New Jersey Multiple Listing, Inc. Some real estate firms do not participate in Internet Data Exchange © and their listings do not appear on this website. Some properties listed with participating firms do not appear on this website at the request of the seller. All information deemed reliable but not guaranteed. © 2026 New Jersey Multiple Listing Service Inc. All rights reserved.
Information herein is deemed reliable but not guaranteed.